grima loussouarn architectes

l'agence

projets

actualités

contact

/par lieu

/par année

/par catégorie

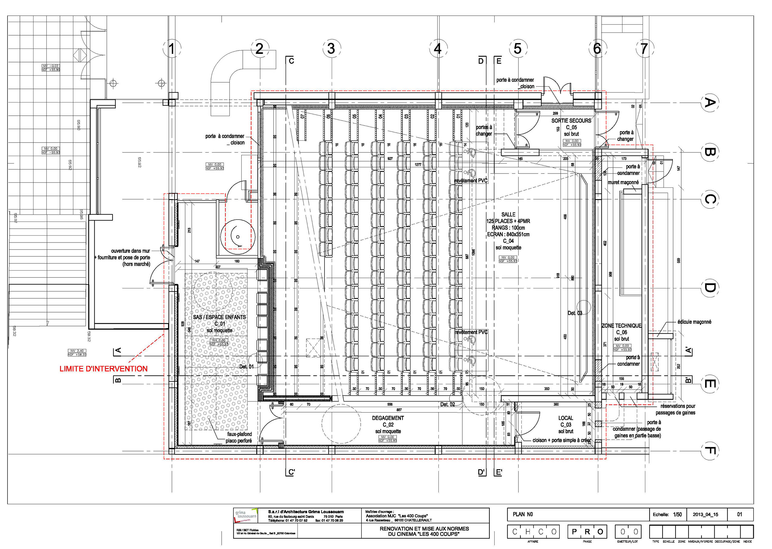
RÉHABILITATION DU CINÉMA LES 400 COUPS, CHÂTELLERAULT (86)

Restauration du Cinéma les 400 coups à Châtellerault, appartenant au centre culturel l’espace Rasseteau.

 

Restructuration des accès à la salle, remise aux normes des installations techniques, remise aux normes d’accessibilité et CST et augmentation du confort acoustique et visuel de la salle.

 

1 salle.

Marché : Privé

Mission : Complète

 

Bet Fluides : RBI, Colombes

Bet Structure : Lamalle, Tours

 

Montant : 300 000 € HT

S.H.O.N. : 225 m²

 

Livré en : 2013

 

Maîtrise d'ouvrage :

Association MJC les 400 coups

M. Pascal Robin