grima loussouarn architectes

l'agence

projets

actualités

contact

/par lieu

/par année

/par catégorie

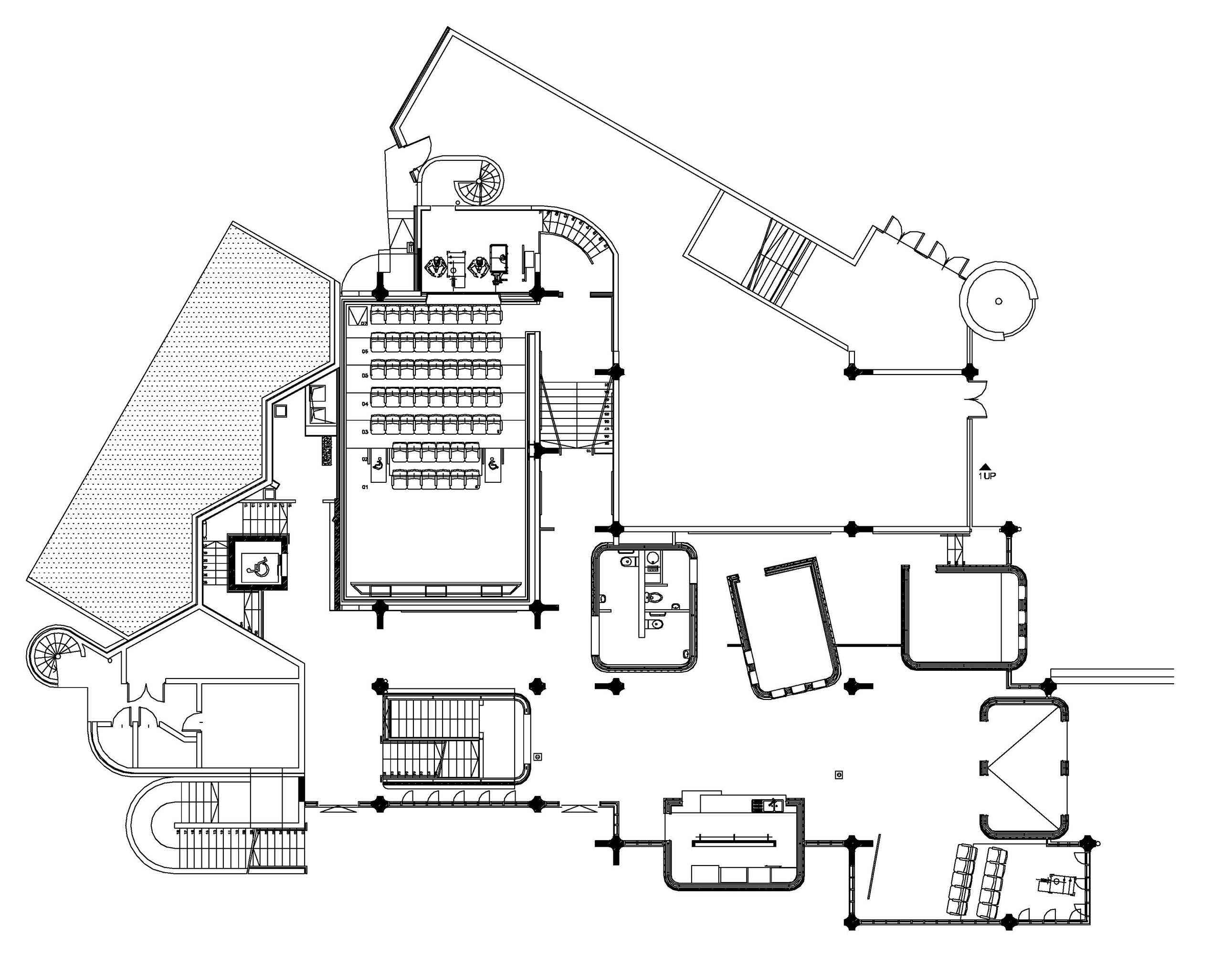
RÉNOVATION / EXTENSION DU CINÉMA LES 7 MARES, ÉLANCOURT (78)

Restructuration lourde du cinéma de deux salles Ciné 7 à Élancourt et extension à l'intérieur de l'existant avec création d'une troisième salle partiellement creusée en sous-sol, aménagement d'un hall plus vaste, mise en accessibilité de l’ensemble du bâtiment, déplacement des sanitaires et réfection complète du système de chauffage et de ventilation.

 

300 places.

Marché : Public et privé

Mission : Complète

 

Bet Fluides : RBI

Bet Structure : Brizot Masse Ingénierie

Acousticien : Général Acoustics

 

Montant : 2,8 M€ HT

S.H.O.N. : 2197 m² utiles

 

Études : 2010-2011

Livré en : 2013

 

Maître d’ouvrage :

Communauté d'Agglomérations de

Saint-Quentin-en-Yvelines et SEM CINE 7