grima loussouarn architectes

l'agence

projets

actualités

contact

/par lieu

/par année

/par catégorie

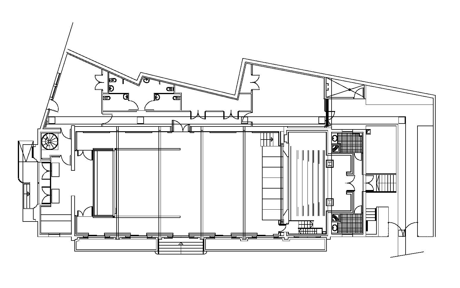
RÉNOVATION DE LA SALLE JACQUES BERRIER, SARCELLES (95)

Rénovation lourde de la Salle des Fêtes du début XXème siècle dans le respect de la typologie du lieu. Installation de gradins télescopiques pour l’accueil de diverses formes de spectacles (petits spectacles, cinéma), ou d’activités (banquets, expositions),

 

Création d’une régie et d’une cabine de projection, aménagement de l’espace scénique.

 

Transformation des dessous de scène, pour l’aménagement de loges, sanitaires, locaux techniques Création de deux salles de réunions.

 

Ravalement complet des façades, isolation thermique et phonique. Afin de ne pas dénaturer l’existant il a fallu mettre en place différents procédés acoustiques complexes.

 

Capacité : 126 places en configuration gradins ouverts.

 

 

Marché : Public

Mission : Complète

 

Bet Fluides : RBI

Bet Structure : Mouchel

Bet Acoustique : Général Acoustics

 

Montant : 1,3 M€ HT

S.H.O.N. : 700 m²

 

Livré en : 2009

 

Maître d’ouvrage : Commune de Sarcelles