grima loussouarn architectes

l'agence

projets

actualités

contact

/par lieu

/par année

/par catégorie

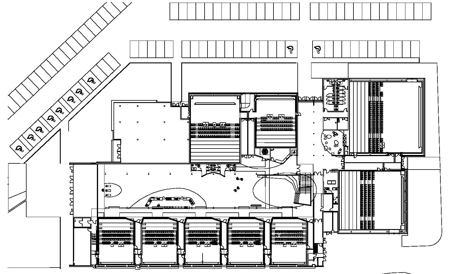
CONSTRUCTION DU CINÉMA LE GRAND PALACE, SAUMUR (49)

Construction d’un complexe cinématographique de

9 salles à Saumur. Le projet est constitué d’un hall traversant ouest-est accessible depuis un espace piéton en bordure d’un centre commercial.

 

Le projet comprend également une grande salle de réception ainsi que son bloc sanitaires et sa cuisine traiteurs, en lien direct avec la grande salle.

 

La grande salle dispose de 400 places et des équipements complémentaires permettant l’accueil de spectacles.

 

Le projet comprend également l’implantation d’un restaurant autonome.

 

9 salles / 1442 fauteuils

Marché : Privé

Mission : Complète

 

Bet Fluides : RBI, Colombes

Bet Structure : Lamalle Ingénierie, Orly

Bet Acoustique : Général Acoustics, Paris

 

Montant : 10,4 M€ HT

S.H.O.N. : 6000 m²

 

Livré en : 2017

 

Maîtrise d'ouvrage :

S.A.R.L. Le Palace, Frédéric Levy