grima loussouarn architectes

l'agence

projets

actualités

contact

/par lieu

/par année

/par catégorie

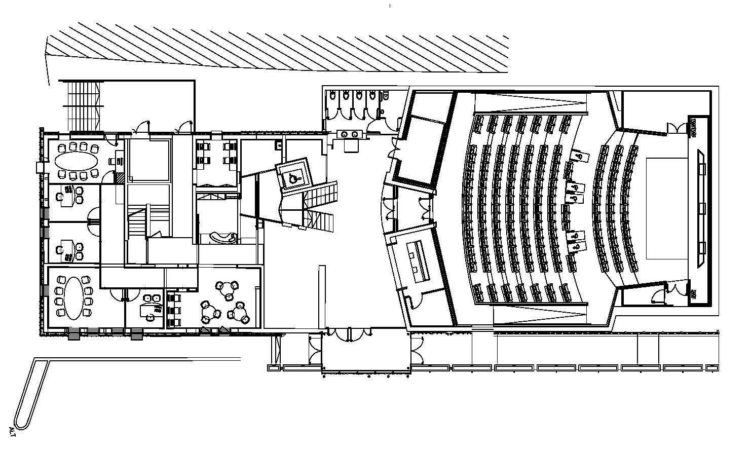
MAISON DES SERVICES PUBLICS, LANGOGNE (48)

Création d’une maison des Services Publics pour la Communauté de Communes du Haut-Allier à Langogne, regroupant une salle du conseil de Communauté de Communes, des bureaux et tous les locaux annexes nécessaires à l’accueil du personnel et du public. Il s’agit de la seconde phase  de la réhabilitation de ce bâtiment qui accueille aussi le Cinéma, lui-même réhabilité entre 2009 et 2011.

Marché : Public

Mission : Complète

 

Bet Fluide : RBI, Colombes

Bet Structure : Lamalle Ingenierie, Orly

 

Montant : 1,2 M€ HT

S.H.O.N : 532 m2

 

Livré en : 2015

 

Maître d'ouvrage : Communauté des Communes du Haut Allier