grima loussouarn architectes

l'agence

projets

actualités

contact

/par lieu

/par année

/par catégorie

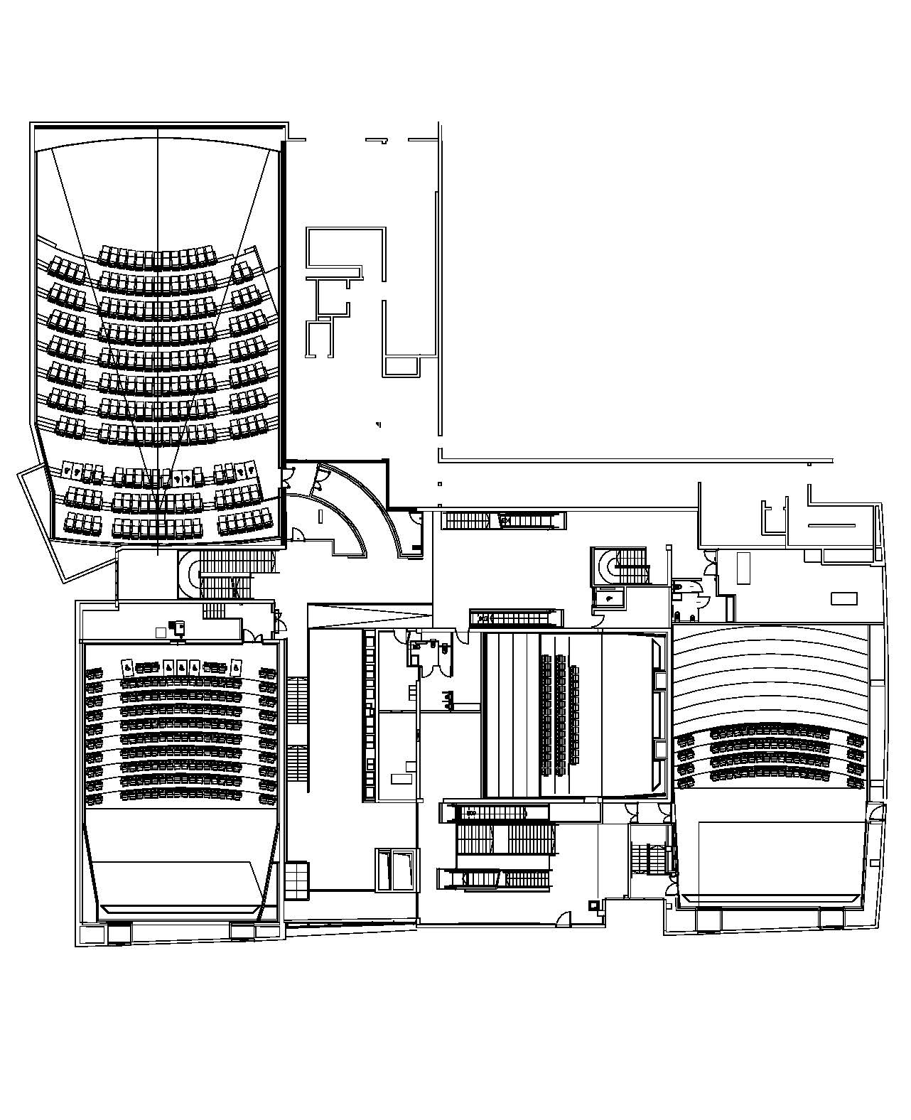
PATHÉ, MASSY (91)

Le projet s’inscrit dans une opération d’envergure menée par Christian de Portzamparc, architecte de l’ensemble de la ZAC et du bâtiment qui abrite un centre des congrès et le complexe cinématographique.

 

La mission porte sur l'aménagement général intérieur de ce complexe cinéma qui compte 12 salles réparties sur 9 niveaux, comprenant la gestion des flux (séparation des circuits des entrants et des sortants) , la synthèse des contraintes techniques et de sécurité, des normes cinématographiques et une étude particulière sur la qualité des espaces publics (salons, dégagements et sanitaires).

 

12 salles.

 

Marché : Privé

 

Architecte mandataire :

Sarl Grima Loussouarn

Architecte d'intérieur :

Ora Ito

 

Bet Fluides : Serted, Massy

Bet Acoustique : Agna, Paris

 

Montant : 14,4 M€ HT (hors coque)

S.P.L. : 15 937 m²

 

Livré en : 2013

 

Maîtrise d'ouvrage :

Cinémas Gaumont Pathé

Maître d'oeuvre d'exécution : Ingérop