grima loussouarn architectes

l'agence

projets

actualités

contact

/par lieu

/par année

/par catégorie

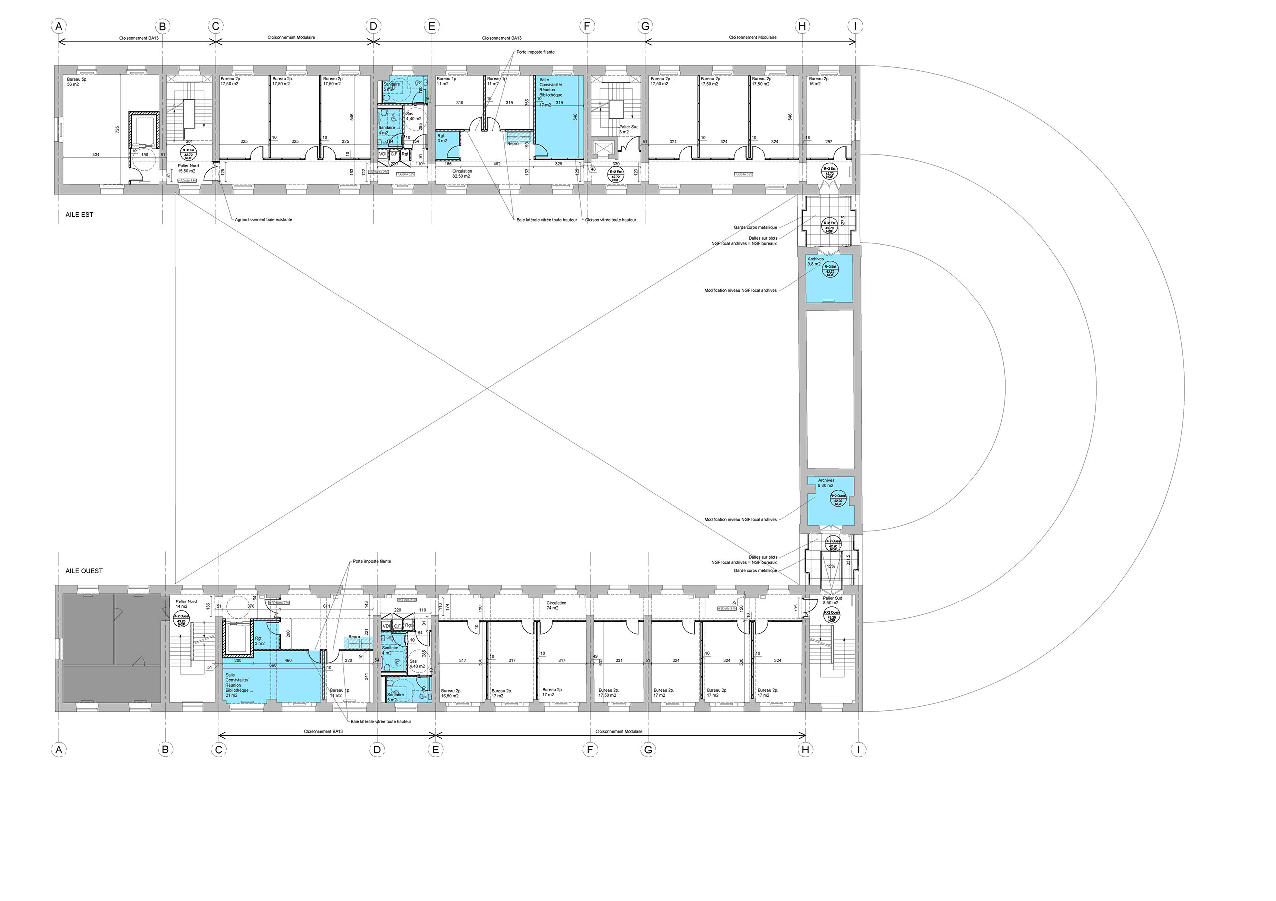
RÉHABILITATION DU BÂTIMENT BOULEY DE L’ÉCOLE NATIONALE VÉTÉRINAIRE,

MAISONS-ALFORT (94)

Réhabilitation de l’ensemble du bâtiment Bouley, édifice datant de la fin XIXème / début XXème, constitué de :

- deux ailes de bureaux en R+3,

- un hémicycle abritant la clinique équine, entouré des écuries (ensemble ISMH),

- un préau percé d’une verrière.

 

Mise aux normes accessibilité et de sécurité, aménagement de bureaux, mise aux normes énergétiques, restauration des façades.

 

Façades partiellement ISMH.

Marché : Public

Mission : Complète

 

Architecte mandataire :

Atelier Gallois-Montbrun

Architecte cotraitant :

Sarl Grima Loussouarn

Architecte cotraitant :

Sarl Punto

 

Economiste : Philippe Grandfils

 

Bet Fluides : RBI

Bet Structure : Cap Structure

Bet Acoustique : Echologos

 

Montant : 4,4 M€ HT

S.H.O.N. : 2300 m² et 4000 m² de façades.

 

Livré en : 2017

 

Maîtrise d'ouvrage :

École nationale Vétérinaire de Maisons-Alfort

Ass M. d'ouvrage : EGIS Conseil bâtiment