grima loussouarn architectes

l'agence

projets

actualités

contact

/par lieu

/par année

/par catégorie

RÉAMÉNAGEMENT DE LA MAIRIE DU Vème ARRONDISSEMENT, PARIS (75)

L’histoire de la Mairie du Vème arrondissement est étroitement liée au projet urbain conçu dès 1763 par J. G. Soufflot (mais non terminé) autour de l’église Sainte-Geneviève qui deviendra le Panthéon.

 

C’est sur l’emplacement prévu pour la faculté de théologie que sera édifiée en 1846 la mairie sous la responsabilité de J.I. Hittorff . Celui-ci conçoit la façade dans le respect du projet urbain initial en symétrie de celle de la faculté de droit réalisée par

Soufflot.

 

Un agrandissement de cette mairie est voté dès 1913. Mais ce n’est qu’en 1921 que le projet se concrétise sous la responsabilité de R. Patouillard-Demoriane. Seule la façade initiale est conservée, le reste de l’édifice est entièrement reconstruit avec un abondant décor Art Déco.

 

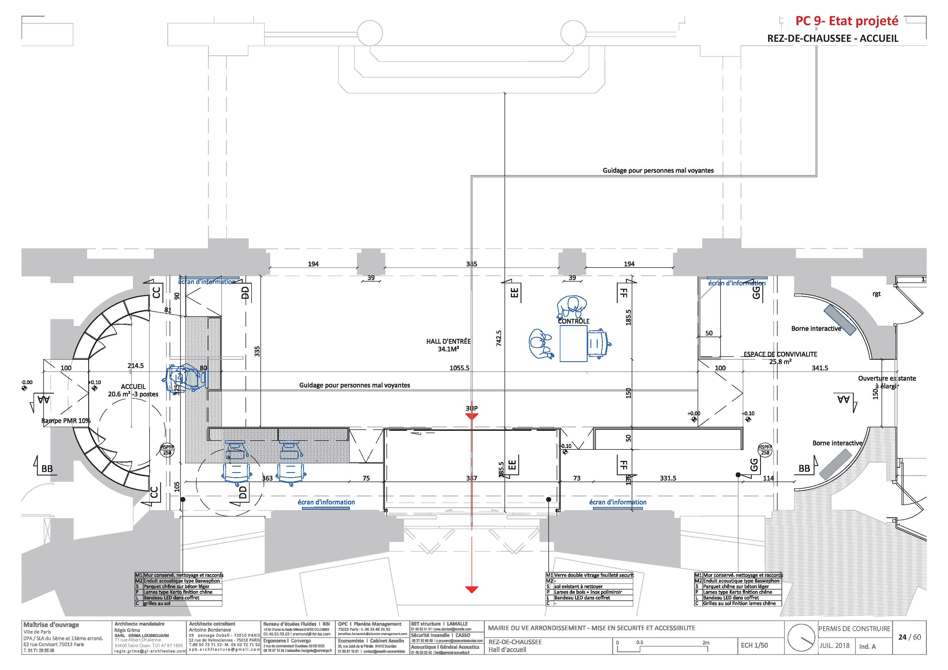
L’actuel projet consiste en la mise aux normes de sécurité incendie et d’accessibilité de l’ensemble de la mairie, ainsi que la conception d’un nouvel accueil à l’entrée du RdC, et du guichet unique au R+3.

 

Edifice ISMH. Travaux prévus en site occupé.

Marché : Public

 

Architecte mandataire :

Sarl Grima Loussouarn

Architecte cotraitant :

Antoine Bordenave

 

Bet Fluides : RBI

Bet Structure : Lamalle Ingenierie

Bet Acoustique : Général Acoustics

Economiste : Cabinet Asselin

Conseil ergonome : Convergo

Conseil sécurité : Casso et Associés

OPC : Planet Management

 

Montant : 2 740 000 € HT

S.H.O.N. : 13 225 m²

 

Projet en cours depuis 2017

 

Maîtrise d'ouvrage :

Ville de Paris SLA 5/13