grima loussouarn architectes

l'agence

projets

actualités

contact

/par lieu

/par année

/par catégorie

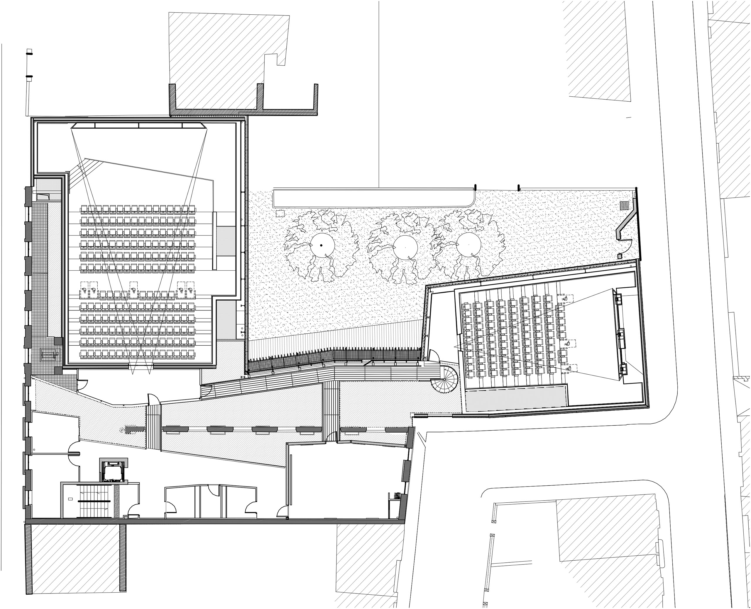
CONSTRUCTION DU CINÉMA ART ET ESSAI STUDIO FERRY, AGEN (47)

Construction d’un Cinéma de 2 salles en lieu et place de l’école Jules Ferry. Le projet comprend une salle de 200 places et une salle de 100 places ainsi qu’une salle de formation à l’image.

 

Le projet comprend également un aspect patrimonial avec la mise en valeur et la restauration de la façade principale et son campanile, des arcades de l'ancienne cour d'école qui délimitent le café-ciné à l’intérieur du hall, et de la cloche d'école pour sonner les séances.

 

Le traitement de la façade se veut contemporain (marquise, menuiseries...), la nuit, un travail sur l’éclairage vient mettre en valeur l’ensemble du site et marquer l’entrée du Cinéma.

 

Cinéma Art et Essai 2 Salles.

Marché : Public

Mission : Complète

 

Bet Fluides : RBI

Bet Structure : Lamalle Ingenierie

Bet Acoustique : Général Acoustics

Conseil HQE : Dauchez Payet

Eclairagiste : Simon Deschamps

 

Montant : 2,8 M€ HT

S.H.O.N. : 1450 m²

 

Etudes : 2011-2012

Chantier : Livré en décembre 2013

 

Maître d’ouvrage : Commune d'Agen

 

Photograhe : Pascal Petitprez

LAUREAT, PALMARES 2014

DU CAUE 47 EQUIPEMENT CULTUREL